伊勢の川中古住宅
| おすすめポイント |
☆駅近、文教施設も充実!子育て世帯におすすめ♪ ☆広めの敷地で庭・駐車スペースも十分♪ ☆売主につき仲介手数料なし |
|---|---|
| 所在地 | 新潟県五泉市伊勢の川 |
| 価格 | 1,650万円 |
| 地目 | 宅地 |
| 地積 | 268.52㎡(81.22坪) |
| 道路 | 東側市道6.0m |
| 計画区域 | 都市計画区域内, 非線引区域 |
| 用途地域 | 第2種中高層地域 |
| 建ぺい・容積率 | 60%・200% |
| 構造 | 木造鋼板葺2階建て |
| 新築年月日 | 平成7年9月20日 |
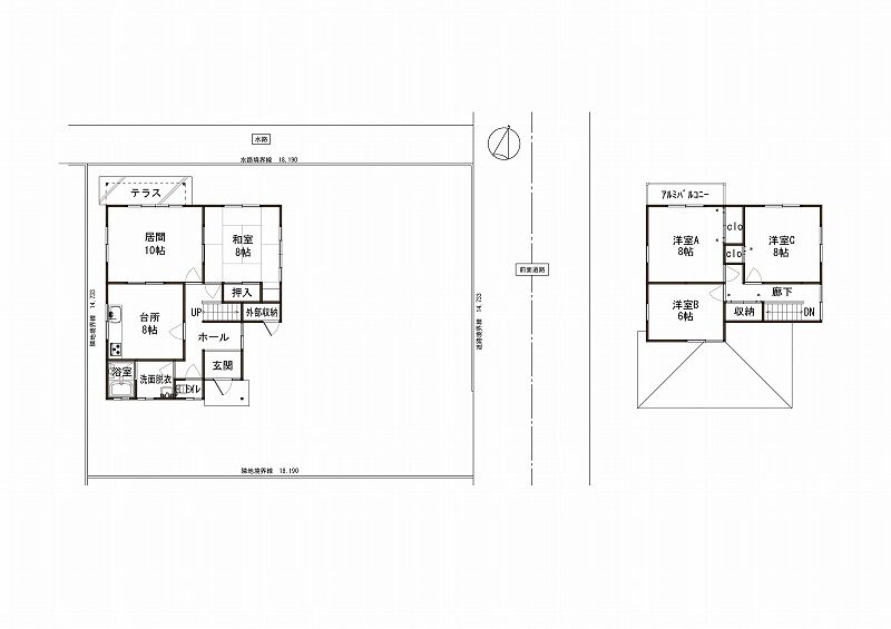
| 延床面積 | 114.86㎡(34.74坪) |
| 間取り | |
| 設備 | 東北電力, 都市ガス, 上下水道, 側溝 |
| 学区 | 五泉小学校/五泉北中学校 |
| 取引形態 | 売主 |
| 交通・施設 |
JR北五泉駅 徒歩7分 五泉小学校 徒歩10分 五泉北中学校 徒歩11分 五泉高等学校 徒歩9分 |
| その他 |
令和8年1月 内外リオールフォーム済み アルミバルコニーつき 外部収納あり |









